Ode to the Channel, Emeka Ogboh. Folkstone, UK. Exhibition (2025)


Sound Scenography. Exhibition Design.
Sound Design. Engineering.

An 8 channel Acousmatic presentation of a choral work written by Rachel Gerrard and performed by the 'Channel Sirens. A last minute change by local council forced the relocation and re-envisioning of the project- moving it from a jetty to a small tunnel connecting the cliff face and promenade to the ocean front.

Water resistant IP68 horns, like those used for emergency systems on maritime vessels, were chosen for their visual impact, connection to the environmental context, and their robustness. The playback system had to be nearby, and was fit into a IP68 rated cabinet to mitigate the damages from seawater as much as possible. The control center was obscured behind a knee wall and all cables were routed to the tunnel via horizontally boring and pvc conduit.

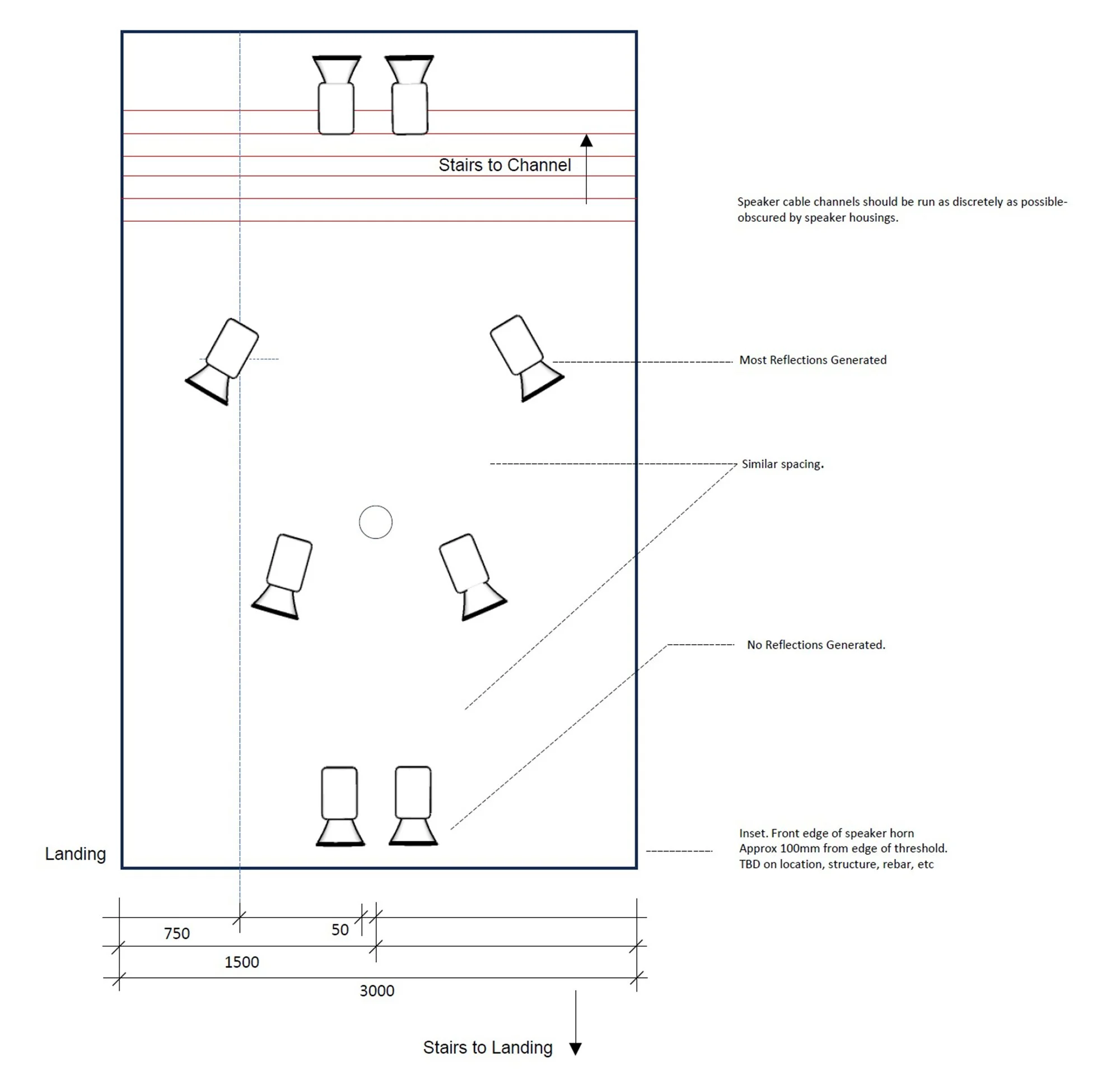
In order to add depth to the design and speak to the artist's vision, speakers were arranged to mimic the outline of the small plastic boats often used by refugees when crossing the channel.

The resonance of the space proved challenging and extensive sound studies were done in order to strategize. The end result was a plan to use rear speakers to activate the acoustics of the space, while the two front and rear speakers were moved to the edge of the tunnel, allowing them to project information clearly, without reverb. By directing the speakers at the rock face and beach head, visitors across the harbor were able to hear the program and be drawn to it- speaking to the artists vision of 'the siren's call' across the channel.

Previous
Previous

Gucci, Berlin (2022)

Next
Next

LUMEN, Sehsucht & Sizzer. Amsterdam (2019)